EDINBURGH, MARCHMONT
6/8 Spottiswoode Street, EH9 1ER
Not Available
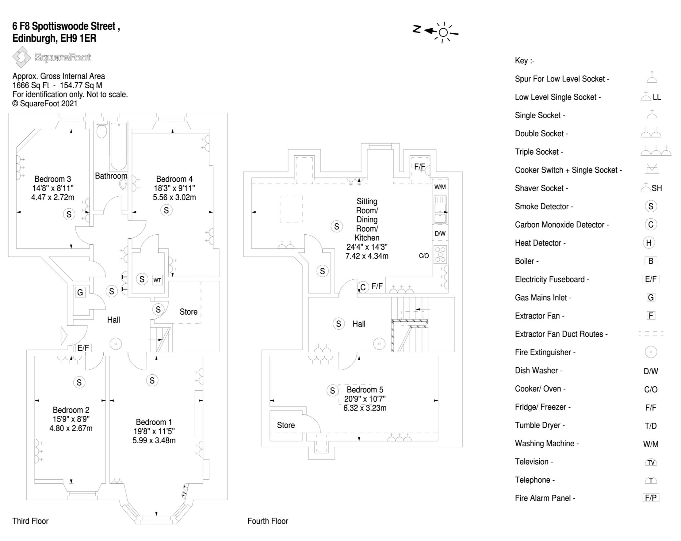
Excellent dual-level, five bedroom HMO property in the heart of Marchmont. Suitable for students.
Internally the apartment comprises of a spacious hall, five bedrooms, living room kitchen and bathroom with shower over bath. Property benefits from ornate cornicing, fireplaces (out of use) well equipped kitchen with all appliances and an abundance of natural light.
Spottiswoode Street boasts close proximity to the Meadows, Commonwealth pool, Holyrood Park, Arthurs Seat and only a 15 minutes walk to Edinburgh University. The nearby area of Bruntsfield and Morningside offer a wide range of shopping including a Waitrose, Marks and Spencer, a choice of specialist shops, cafes, restaurants and bars. There are also excellent links to the city centre and only 1.5 miles from Edinburgh’s Waverley Station.
5 Bedrooms, 1 Bathroom
Rent: Please get in touch for information
Available Date: Please get in touch for information
EPC Rating: D
Council Tax Band: D
Arrange a Viewing
Call us on 07786 263 954 or send a message below
Dedicated Support Team
Just a quick call away should you need anything from us.
Gas & Electrical Certification
All of our properties get yearly Gas Safety & Electrical PAT testing.
Professionally Managed
Our team have experience spanning over 40 years in the property management industry.
HMO Compliant
All relevant properties are fully compliant with HMO regulations.
Our Properties

